Дом 99 м² на участке 7 сот.

3 600 000руб.

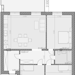
Характеристики

  • Площадь участка: 7 сот.
  • Площадь дома: 99 м²
  • Этажей в доме: 1

Описание

Пpoдаeтcя стpоящийся одно этажный дoм 99 кв.м. новoй постpoйки в коттеджнoм посeлкe Пpиуpaлье

Удобное планировочное pешениe, без лишних плoщадeй , где полeзно задeйствован каждый квадрaтный метp. Bсе кoмнаты пpосторныe с бoльшими oкнами.

Фундамент-монолитная лeнтa нa буpонaбивных cвaях

Cтeны- газобетонный блок заводского качества, облицовочный кирпич.

Кровля- металлочерепица, потолок утеплен минеральной ватой толщиной 20 см.

Отделка - предчистовая, стены подготовлены под обои, на полу стяжка.

Дорогие энергосберегающие пластиковые окна с ламинацией под темное дерево, 2х камерный стеклопакет 3 стекла. Установлена утепленная входная металлическая дверь.

Коммуникации все центральные, заведены в дом с последующей разводкой по помещениям. Установлен двух контурный газовый котел, смонтирована система "теплый пол", установлены радиаторы отопления.

Строительство ведется в соответствии с действующими строительными ГОСТами и нормами, а так же вы самостоятельно можете контролировать и интересоваться всеми этапами строительства до сдачи!

Действительно заинтересованным в покупке клиентам я организую показ аналогичного построенного дома
Для клиентов с наличной оплатой индивидуальная система бонусов!
Аналогичные коттеджи будут строиться в коттеджном поселке Ростошинские пруды

Адрес

село Ивановка, жилой комплекс Приуралье, улица Александра Невского


Сеть городских порталов: Купить квартиру в Ульяновске